
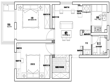
這套房子屬于學區房,父母為了孩子的上學方便,買了這所老小區的房子,90年代的老房子了,兩室格局,一間主臥,一間兒童房,房間還是夠用的;老房的基本通病為采光不佳、收納不當、布局不合理、設計老舊,而這四大通病在這老房子里一個不落的都撞上了。為此設計師拆除所有不合理,重新規劃布局,給昏暗破舊老房整容式大逆襲!
玄關

入戶是一個玄關門廳的空間,設計師還做了嵌入式的鞋柜,提升了使用面積。
客廳

合理的處理手法可以讓整個空間更加靈活,客廳即是餐廳、餐廳即是客廳,沒有隔斷,沒有區域分化,空間被聯系起來打破房子的“界限”!靠窗處設計了雙人書桌,良好的光線能夠讓孩子的學習更加方便閱讀。

女主人喜歡簡單,偏溫馨,因此全屋走的是現代簡約原木風,全面打造一個實用溫馨的家,在其色彩體系中,白色、木色等自然色彩被大量的使用,沒有花哨的吊頂或其他配飾,一切從簡,意在自然。

靠墻處打造了一組嵌入式的柜體,開放式的收納格擺放著學習的書籍,以及小女孩喜愛的裝飾,真正的做到了美觀與收納的完美結合。在公共空間內做了榻榻米的空間,既充當著會客區的作用,也有超強的收納空間。
廚房

廚房位于房子的西北方向,原木色板材定制的地柜和儲物柜,搭配黑白方格的墻磚,淳樸自然,簡約時尚,堪稱最舒適的搭配。不銹鋼材質的廚房臺面,具有綠色環保無輻射的優點,廚房盡量采用了嵌入式的家電,能讓空間進行更多的操作,功能區分開布局,操作方便。
陽臺

陽臺墻地面都采用淺色大理石,洗衣機柜是買的成品的,整體簡單搭配,簡約舒適。
主臥

原木風元素貫穿始終,主臥延續著溫潤質樸的感受,床頭采用吊燈,空間更顯溫馨。主臥保持了客廳簡單溫馨的原木風格調,木質床頭,既讓空間更有設計感,還節省出很多空間。

靠墻的梳妝柜,吊燈的點綴,共同組成這個溫馨的睡眠區域。主臥室衣柜做了嵌入式的設計,更加節省空間,素雅的色調更能讓人享受臥室給人的撫慰與舒適。
兒童房

兒童房設計加入了大面積的粉色調以及木質柜,旨在營造舒適、溫馨的柔和氛圍。靠窗處打造了對稱的柜體及書桌,讀書區域光線充足,上方開放格的設計,兼具設計感和實用功能。柜體設計沿襲整體空間,做了嵌入式,白色柜體+粉色背景墻,打造一個專屬的公主房。
衛生間

衛生間做了干濕分離的設計,木與白的融合簡約高級又溫馨治愈。淋浴區灰色調更具時尚,干區臺盆下柜的柜體設計,滿足了日常生活用品的收納。





