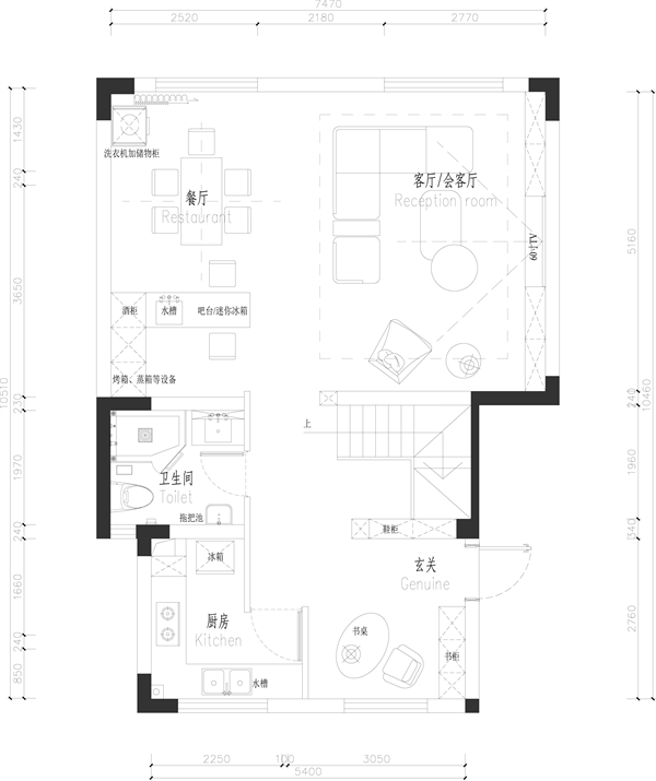
一層

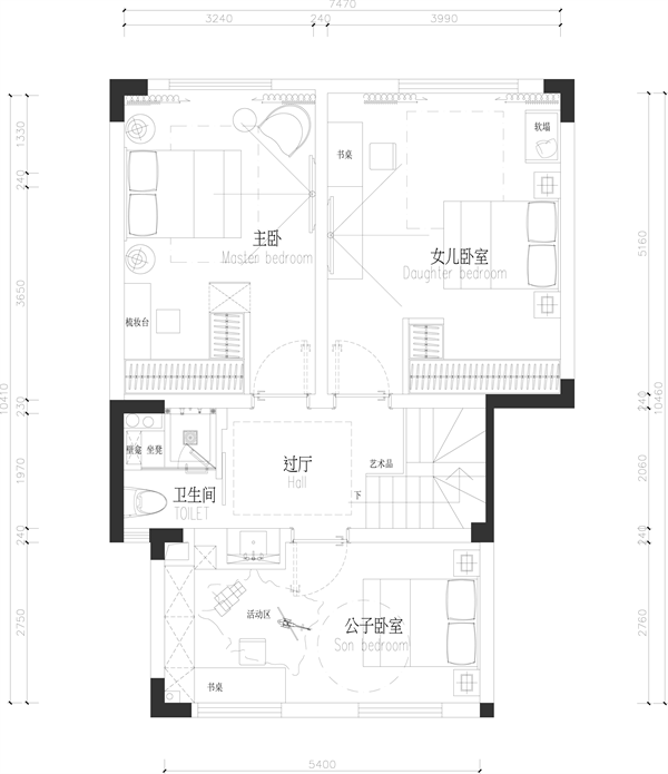
二層

生活的樂趣,源于悅己。
本案為復式戶型,一樓為動區,二樓為靜區,功能區域分明,簡約又得體。
玄關+書房

入戶原為門廳的區域改為開放式書房,很好的將功能融合。開放式的入戶空間,使空間看起來更加寬敞,玄關柜擁有隔斷作用,使開放式書房更像是一個獨立的空間。

書房一側的墻面原本的廚房門,設計師將開門方向改變,同時塑造以原木色格柵墻面為主的入戶景觀。
客廳

客餐廳一體,增加了空間交流,入戶景觀區的格柵墻面與餐廳區域相連,使整體看起來更為統一。

電視背景墻采用整面收納柜,擁有強大的收納功能,中間嵌入電視機位,免拉手的設計使其更加美觀。電視背景墻一側做開放格,增加展示位,灰色沙發的低調色彩,將空間平衡。大理石紋路電視柜作為客廳C位,更多的體現了業主的審美與品位,與深色木飾面一起打造沉穩空間。
餐廳

餐廳與走廊統一采用格柵木飾面,低調色彩,樸素自然,整體為橫廳構造。設計師將生活陽臺拆除,增加西廚島臺,將空間充分利用,同時擁有島臺、餐廳與陽臺三大區域。

島臺臺面與餐桌臺面皆采用爵士白大理石,低飽和度的色彩搭配更大氣、耐看。

可折疊餐桌也能讓圓桌變成方桌,靠墻擺放可節約空間。原來的陽臺區域將自然光線遮擋,阻擋了餐廳采光,設計師拆除其墻面,使空間更加通透。

整個客餐廳區域,島臺的利用率可以說得上是最高的,內置水池臺盆,柜體內嵌烤箱,簡餐、沙拉都可以在這里輕易完成,加上兩只吧臺凳,休閑實用兩不誤。
廚房

廚房空間在原來的基礎上,擴充了內部空間,格局為向內延伸的L形,黑白灰的色調簡約又整潔。
樓梯

樓梯采用與玄關呼應的黑色啞光扶手與木飾貼面,階梯采用阿瑪尼灰的大理石紋理,與地面灰色呼應。梯下區域做景觀區的同時,也擁有巨大的收納空間,作為隱藏式儲藏室十分實用。樓梯的木飾貼面與二樓地板呼應,無論是一樓或是二樓的空間,都顯得十分統一。
主臥

主臥以冷峻的黑灰色調為主,再利用溫暖的燈光進行中和,整體更加靜謐舒適。為了擴大主臥室內空間,設計師將陽臺拆除,為室內增加一體化衣帽區。

獨立衣帽區利用柜體隔斷,白色柜門與木紋柜體的雙色搭配,使空間不再單調。梳妝臺隱藏在入門衣柜后,既保證了隱私,又給女主人一個獨立的梳妝區域。入門衣柜為透明玻璃質地,柜內設置燈帶,放置業主的外套等衣物,衣柜的設計同時也保證了主臥的私密性。
女兒房

女孩恬靜,整體色彩更傾向于甜美與浪漫,白色調的大量運用,更符合孩子在不同年齡段時居住的需求。橘色床品搭配,為沉穩空間增加活潑色調,暖色的燈光搭配,讓女兒房更加柔美。

書桌組合柜置于床尾,為女孩的獨立的學習區,也使女兒房每個區域功能明確。
男孩房

男孩房黑白灰為主的中性色調,更符合男孩子未來的審美趨勢。因為男孩房是由兩個房間打通組合而成,所以橫向面比較長,一側為休息區,一側為學習區。為日常學習量身定制的書桌高度,符合人體工程學,整體原木定制更有品質。
衛生間

一樓衛生間以黑白色調為主,鉆石型淋浴房為衛生間劃分出不同功能區域。黑白鏡柜組合強化收納,臺下盆設計更便于日常清潔。

二樓衛生間干濕分離,干區獨立于衛生間外,白色格子瓷磚造型素雅有格調。灰色大理石紋瓷磚沉穩大氣,濕區墻面以白色格子瓷磚加強空間區分。淋浴房內置壁龕,加強收納,內部增加浴室凳,既可以當做凳子,也可作為收納臺使用。





